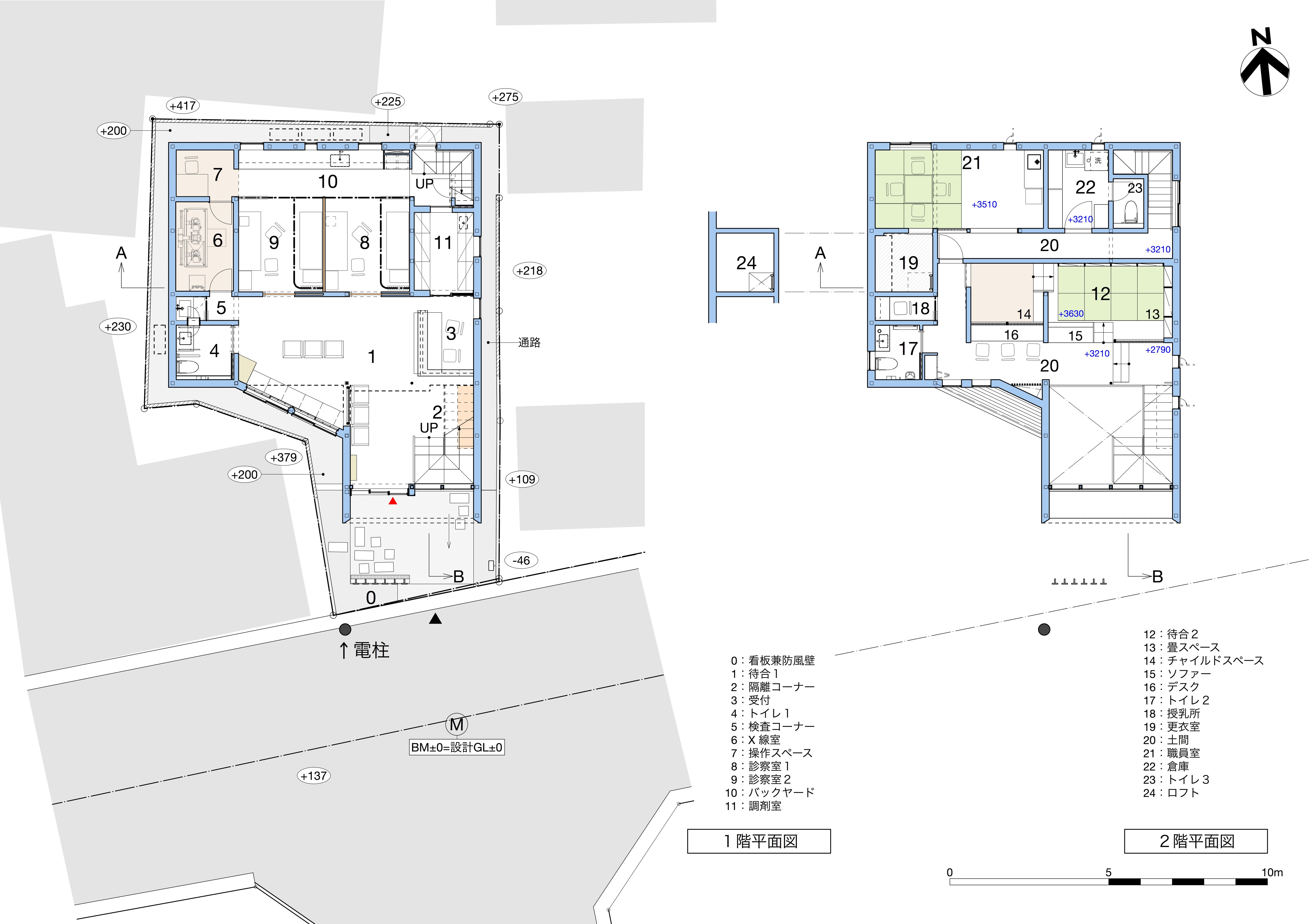
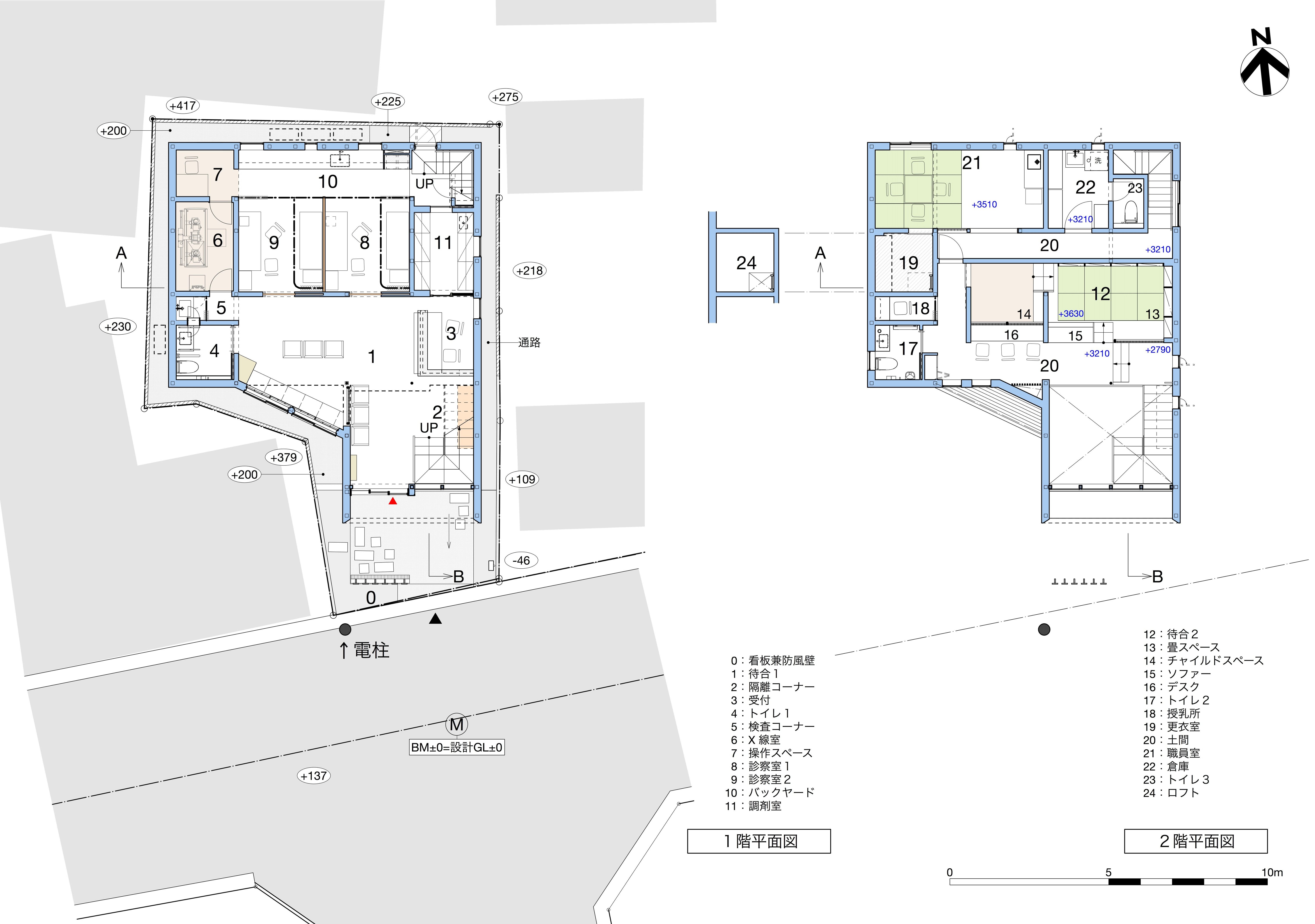
左から、配置図・設計主旨、平面図、断面図
※サムネイルをクリックすると、拡大します



 

Copyright© 2000-2025 DAT/株式会社都市環境研究室 一級建築士事務所 All Rights Reserved.